Hardstrasse 8a | 4657 Dulliken
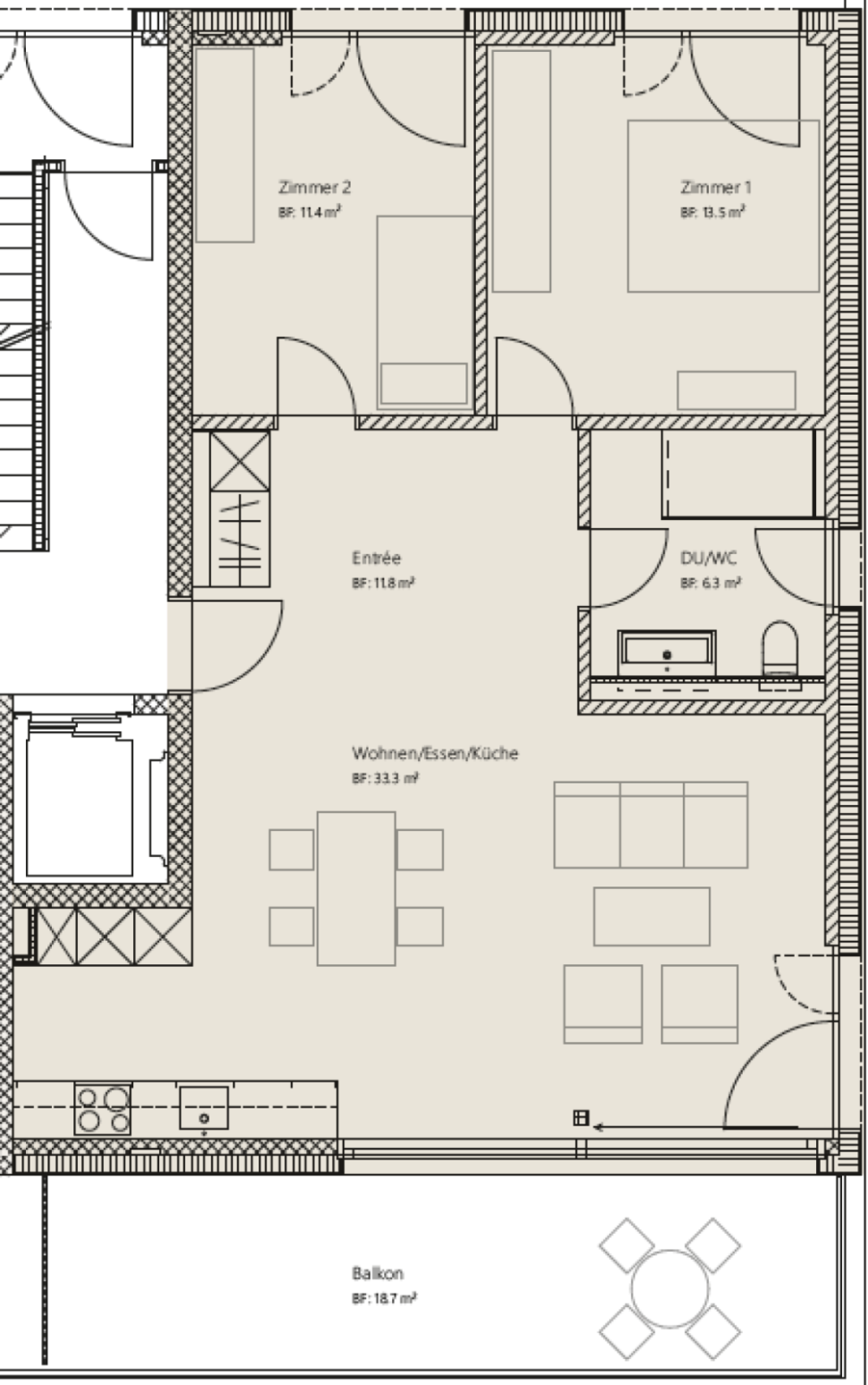
3.5
Zimmer
76 m2
Fläche
Ab April 2026
Bezug
CHF 1'945
inkl. NK
Bildergalerie
Objektdaten
Objektart
Wohnung
Nettomiete/Monat
CHF 1'735
Nebenkosten/Monat
CHF 210
Stockwerk
1. OG
Bezug ab
April 2026
Objektnummer
132000.02.101
Wohnen an grüner Lage
Wohnen an grüner Lage
Hochwertiger Ausbau & herrliches Naherholungsgebiet
Ihre Lage-Vorteile
An der Hardstrasse 8 - 12 in Dulliken ist die attraktive Überbauung Engelpark mit herrlichem Blick auf die Hügellandschaft des Engelbergs entstanden.
Die Überbauung direkt am Naherholungsgebiet besteht aus sechs Mehrfamilienhäuser mit Tiefgarage. Trotz ruhiger Wohnlage gelangt man innert wenigen Minuten zum Bahnhof Dulliken mit guten ÖV-Verbindungen. Diverse Einkaufsmöglichkeiten sowie das Schulhaus Neumatt, Kleinfeld und Langmatt sind zu Fuss erreichbar.
Die Mehrfamilienhäuser bestechen durch eine schöne Architektur, einen hochwertigen Ausbau, eine raffinierte Raumaufteilung und grosszügige, nach südwest ausgerichtete Balkone. Freuen Sie sich auf offene Küchen, raumhohe Fenster, schwellenlose Zugänge, Lift und einen eigenen Waschturm in der Wohnung.
So wohnen Sie
Im Haus 8a vermieten wir per 01.04.2026 eine Moderne 3.5-Zimmer-Wohnung.
Die Wohnung überzeugt mit folgenden Highlights.
- -Vinylboden in den Wohnräumen
- -Plattenboden in den Nasszellen
- -Einer offene Küche mit Induktionskochfeld und Kombisteamer
- -Elegante Dusche/WC mit eigener Waschmaschine und Tumbler.
Die Fotos stammen aus einem ähnlichen Objekt und können abweichen
Das ist es Ihnen wert
Mietzins CHF 1'735.00
Nebenkosten akonto CHF 210.00
Mietzins Einstellhallenplatz CHF 130.00
Freuen Sie sich
auf eine tolle, moderne Wohnung.
