Kottenmatte 13 | 6210 Sursee
3.5
Zimmer
68 m2
Fläche
Ab August 2026
Bezug
CHF 1'690
inkl. NK
Virtuelle 360°-Tour
Bildergalerie
Objektdaten
Objektart
Wohnung
Nettomiete/Monat
CHF 1'530
Nebenkosten/Monat
CHF 160
Stockwerk
3. OG
Bezug ab
August 2026
Objektnummer
382200.00.000202
preiswertes Wohnen an zentraler Lage
preiswertes Wohnen an zentraler Lage
Ihre Lage-Vorteile
Sursee ist neben der Stadt Luzern ein bedeutender Wirtschafts- und Lebensstandort im Kanton Luzern. Die charmante Kleinstadt am unteren Ende des Sempachersees bietet ihren Bewohnern und Besuchern eine hohe Lebensqualität. Der Bahnhof sowie Postauto-Verbindungen sind bequem zu Fuss erreichbar, ebenso der Autobahnanschluss Sursee. Einkaufsmöglichkeiten, Schulen sowie vielfältige Freizeitangebote befinden sich in unmittelbarer Nähe. Der historische Stadtkern und die zahlreichen Naherholungsgebiete laden zum Verweilen und Entspannen ein.
So wohnen Sie
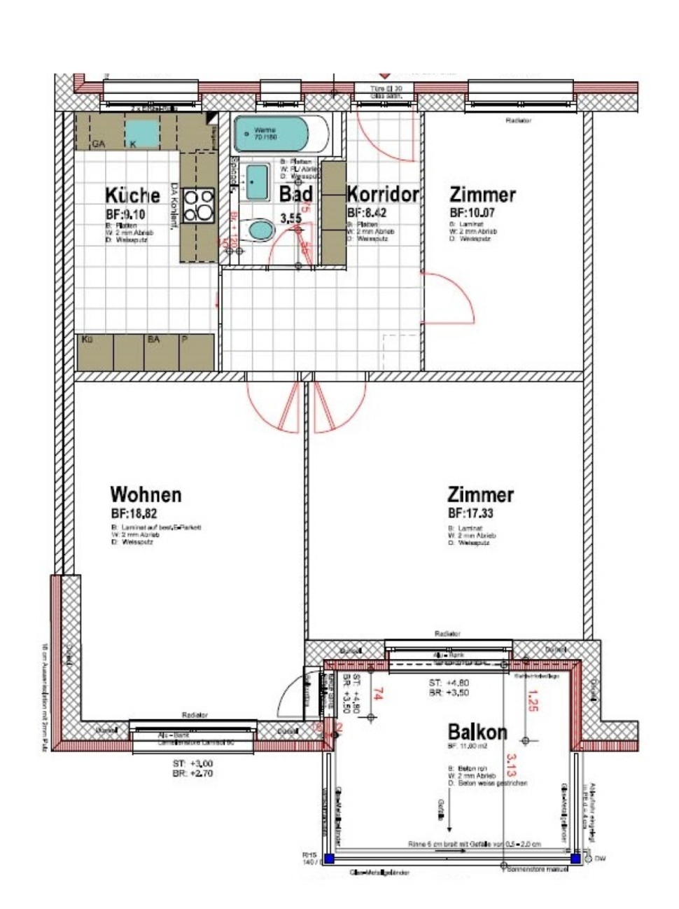
Die Liegenschaft wurde im Jahr 2010 umfassend renoviert und mit einem Personenlift modernisiert. Die Wohnung überzeugt durch helle, freundliche Räume und eine zeitgemässe Ausstattung. Wohn- und Schlafzimmer sind mit Laminatboden ausgestattet, während in der Küche und im Korridor moderne, helle Platten verlegt wurden. Das Tageslichtbad verfügt über eine Badewanne und einen gepflegten Plattenboden. Ein besonderes Highlight ist der grosszügige Balkon mit 11 m2. Zusätzlich gehört zu jeder Wohnung ein geräumiges Kellerabteil im Untergeschoss.
360 Grad Rundgang: Ihr erster Eindruck
Besichtigen Sie die Wohnung ganz einfach online:
https://my.matterport.com/show/?m=S8WneXsCiDU
Das ist es Ihnen wert
Nettomiete CHF 1'530
Nebenkosten CHF 160
Aussenparkplatz CHF 50
Zusätzlicher Abstellraum CHF 30
Freuen Sie sich...
...auf attraktives, modernes Wohnen in zentraler Lage - nur wenige Gehminuten vom Bahnhof entfernt.
