Mühlegasse 5 | 4552 Derendingen
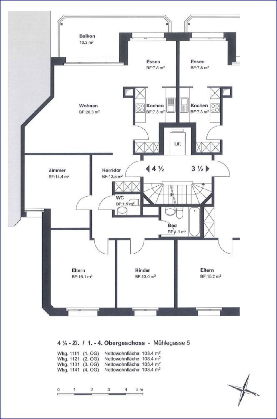
4.5
Zimmer
103 m2
Fläche
Bezug
nach Vereinbarung
CHF 1'840
inkl. NK
Bildergalerie
Objektdaten
Objektart
Wohnung
Nettomiete/Monat
CHF 1'650
Nebenkosten/Monat
CHF 190
Stockwerk
3. OG
Bezug ab
nach Vereinbarung
Objektnummer
130800.01.000007
Ihre Traumwohnung in der 3. Etage
Ihre Traumwohnung in der 3. Etage
Ihre Lage-Vorteile
Die familienfreundliche Liegenschaft liegt mitten im schönen Derendingen. Das im Jahr 2015 sanierte Mehrfamilienhaus grenzt an die Landwirtschaftszone und direkt hinter der grossen Spielwiese fliesst ein kleiner Bach durch. Einkaufsmöglichkeiten sowie öffentliche Verkehrsanbindungen sind in wenigen Gehminuten erreichbar.
So wohnen Sie
Es erwartet Sie eine tolle Wohnung mit:
- Platten- und Laminatböden
- Optimale Zimmereinteilung mit hellen Räumen
- Küche ist mit Glaskeramikkochfeld ausgestattet
- Die Wohn- und Essbereiche sind unterteilt
- Bad/WC und ein separates WC sowie diverse Einbauschränke.
- Der sonnige und grosse Balkon lädt zum Verweilen ein
- Blick ins Grüne
Das ist es Ihnen wert
Nettomietzins CHF 1'650.00
Nebenkosten CHF 190.00
Einstellplatz: CHF 110.00
Freuen Sie sich...
... auf eine tolle Wohnung mit grossen und hellen Räumen.
