Schlossstrasse 5 | 6130 Willisau
4
Zimmer
168 m2
Fläche
Ab September 2026
Bezug
CHF 2'310
inkl. NK
Immobilienfilm
Bildergalerie
Objektdaten
Objektart
Büro
Nettomiete/Monat
CHF 2'060
Nebenkosten/Monat
CHF 250
Bezug ab
September 2026
Arbeiten mit Weitblick im "Bergli" (147 CHF/m2/Jahr)
Im historischen "Bergli" arbeiten
Ihre Lage-Vorteile
Das Bergli an der Schlossstrasse 5 liegt zentral in Willisau etwas erhöht über dem historischen Städtli. Es ist gut zu Fuss und mit Individualverkehr erreichbar. Der grosse Parkplatz zwischen dem Bergli und dem Schloss bietet genügend Parkmöglichkeiten für Sie und Ihre Kunden.
So arbeiten Sie
Das über der Altstadt thronende Haus wurde zwischen 1650 und 1679 erbaut. Das freistehende Bergli am Schlosshügel geniesst mit dem Eckerker und als Teil der Stadtsilhoutte eine besondere Präsenz. Das Gebäude trägt den Status «schützenswert».
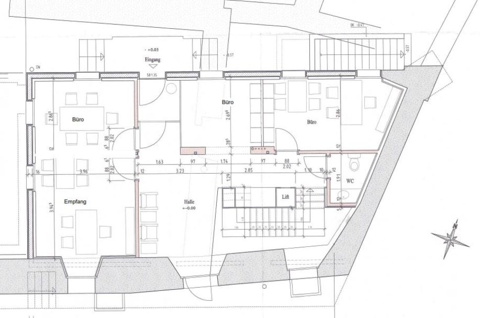
Sie betreten die Büroräumlichkeiten über eine kleine Treppe auf der Nordseite des Hauses. Der praktische Eingangsbereich kann optimal als Empfang oder Wartezimmer genutzt werden.
Zur Linken und Rechten befinden sich die Zimmer, welche vielseitig als Büro oder Sitzungszimmer genutzt werden können. Von hier aus geniessen Sie eine top Aussicht über ganz Willisau. Ebenfalls auf dieser Etage liegt die Toilette.
Im unteren Geschoss finden Sie den Pausenraum mit Küche und das Lager bzw. Archiv. Ein aussergewöhnliches Highlight ist hier die integrierte Stadtmauer. Diese verleiht dem Raum wie auch dem Treppenaufgang das besondere Etwas.
Das ist es Ihnen wert
Netto-Mietzins Büro- | Archiv- | Lagerfläche im UG: CHF 100/m2/Jahr (80m2)
Netto-Mietzins Hauptnutzfläche: CHF 190/m2/Jahr (88m2)
Pauschale Nebenkosten: CHF 250
Freuen Sie sich...
...auf historische Räumlichkeiten mit tollem Ausblick über ganz Willisau.
