Mieten

Schlössliweg | 6243 Egolzwil

Objekt Icon

4.5

Zimmer

Objekt Icon

139 m2

Fläche

Objekt Icon

122 m2

Fläche

Objekt Icon

Ab Juni 2026

Bezug

Objekt Icon

CHF 2'300

inkl. NK

Objektdaten

Objektart

Terrassenwohnung

Nettomiete/Monat

CHF 2'100

Nebenkosten/Monat

CHF 200

Stockwerk

1. OG

Bezug ab

Juni 2026

Redinvest - User Icon

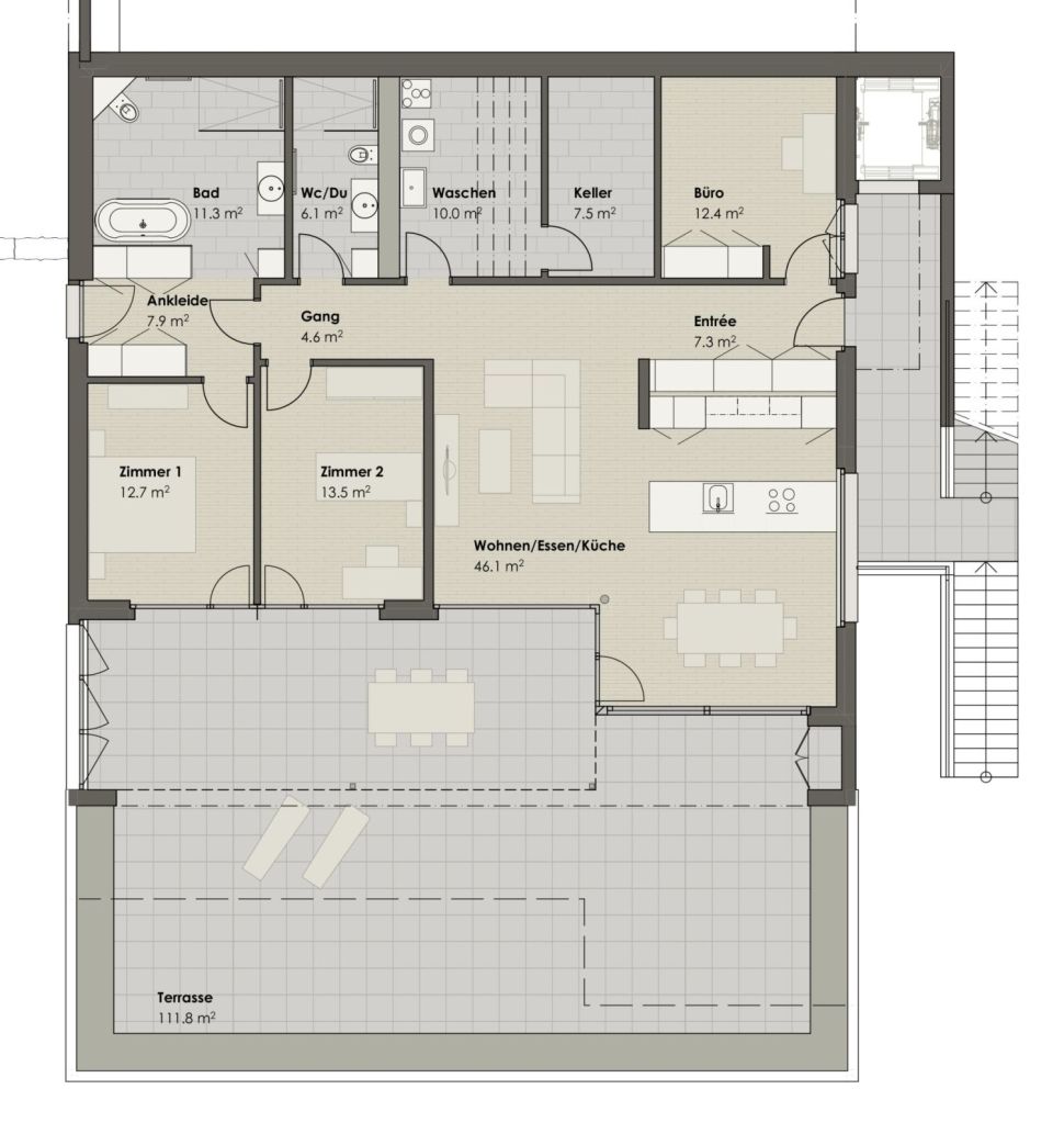
4.5-Zimmer-Terrassenwohnung

Terrassenwohnung mit Panorama-Aussicht

Ihre Lage-Vorteile

Egolzwil ist geprägt durch seine reizvolle Landschaft und einer intakten Natur. Der Santenberg und das weite Moos laden zu ausgedehnten Spaziergängen und sportlicher Betätigung ein. Wer bei guter Fernsicht die überwältigende Kulisse der Berner und Zentralschweizer Alpen in der Abendsonne zum Greifen nah erlebt, dem wird einmal mehr bewusst, welch hohe Lebensqualität Egolzwil bietet.

Für die Naherholung zu Fuss oder mit dem Bike steht ein weitläufiges Wegnetz zur Verfügung. Manch reizvoller, stiller Winkel dieser Umgebung lässt sich auf diese Weise erkunden.
In Egolzwil wird ein aktives Dorf- und Vereinsleben gelebt. Der nahegelegene Autobahnanschluss (A2 Basel/Luzern) sowie die nahe SBB-Haltestelle ermöglichen es, die grossen Zentren der Schweiz mit privaten oder öffentlichen Verkehrsmitteln innerhalb einer Stunde zu erreichen.

Das im Jahr 2018 erbaute Terrassenhaus befindet sich in einer Sackgasse in direkter Nähe des Dorfzentrums, welches auch gut zu Fuss oder mit dem Velo erreichbar ist.

So wohnen Sie

Eines der Highlights ist die Terrasse: Grosszügige 113m2, südlich ausgerichtet, ganztags besonnt und eine unverbaubare Weitsicht. Doch nicht nur von der Terrasse, sondern auch aus der offenen Küche, dem angrenzenden Wohnbereich sowie zwei Schlafzimmern geniesst man die herrliche Aussicht. In allen Wohnräumen ist ein hochwertiger Parkettboden verlegt und alle Storen sind elektrisch bedienbar. Das Elternschlafzimmer verfügt über eine Ankleide sowie ein Badezimmer en-suite mit freistehender Badewanne und Dusche. Das zweite Badezimmer ist mit einer Dusche ausgestattet.

Das Gebäude mit Baujahr 2018 ist minergie-zertifiziert, bietet eine kontrollierte Wohnungslüftung sowie tiefe Heizkosten dank einer Wärmepumpe (Erdsonde). Zudem wurde die Einstellhalle nachgerüstet, sodass auch Anschlussmöglichkeiten für E-Autos bestehen.

Die eigene Waschküche mit Waschmaschine & Tumbler sowie ein weiterer Kellerraum befinden sich direkt in der Wohnung und bieten zusätzlichen Abstellraum. 

Das ist es Ihnen Wert
Nettomiete pro Monat CHF 2'100.-   
Nebenkosten CHF 200.-
2x Einstellplatz CHF 240.-

Alles in allem: CHF 2'540.-

Redinvest - User Icon

Ihre Lage-Vorteile

Schlössliweg | 6243 Egolzwil
Jetzt kontaktieren

Haben Sie eine Frage zum Objekt oder möchten Sie es Besichtigen?

Wir geben Ihnen gerne Auskunft.

{{ message }}

Kontaktformular

erforderlich
erforderlich
erforderlich
erforderlich
erforderlich
erforderlich
erforderlich